Page suivante
Page précédente
Saint-Denis (97400)

Duplex 4 pièce(s) 3 chambre(s) 120.86 m²

1
1
2
560 000 €
Réf VA2536
SAINT DENIS : BELLEPIERRE (97400) : Très grand duplex neuf F4 de 120m² possédant 3 terrasses et une varangue L'agence IDSP vous propose un appartement avec une vue panoramique, neuf orientée plan Nord sur la colline très prisé de Bellepierre et à l'altitude idéal. Si, dans une résidence de très standing possédant 14 lots d'habitation, ce duplex propose au rez-de-chaussée, une très grande pièce à vivre de 50 m², avec sa cuisine et ses WC. À l'étage pour retrouver une salle de bain spacieuse ainsi que trois belles chambres toutes accompagnées de leur terrasse. Vous pourrez profiter depuis votre canapé dans le séjour d'une varangue de 20 m², avec une vue dégagée sur l'océan et la ville de Saint-Denis et le soir du 14 Juillet, vous pourrez profiter de magnifiques tableaux avec vos amis au calme, en dînant ou avec une coupe de champagne. En ce qui concerne l'accès aux commodités, que ce soit pour vous ou pour votre enfant, les écoles, les magasins, et l'hôpital de Bellepierre sont accessibles directement à moins de cinq minutes. Actuellement, en cours de finalisation, l'ensemble du bâtiment est sorti de terre et les équipes travaillent à poser les matériaux à l'intérieur des habitations pour une livraison Septembre. Habitation idéale pour votre résidence principale et vos sociétés, éligible pour une Girardin IS. Ce qui rentre parfaitement dans les délais d'une signature signature de compromis d?un bien déjà construit. Ce duplex d?exception est une invitation à un style de vie paisible et confortable, parfait pour toute la famille. Profitez de l'opportunité de découvrir votre futur chez-vous. N'hésitez pas à planifier une visite pour découvrir par vous-même tous ses avantages. N'hésitez pas à me contacter pour plus de renseignements ou pour visiter Lionel LAQUAY 06 92 06 59 57 / lionel.laquay@limmobilieredesaintpaul.re

Bilan énergétique

Diagnostics énergetiques
A propos de ce bien Caractéristiques de ce bien
  • Surface 120,86 m²
  • séjour 49 m²
  • 3 chambre(s)
  • 1 salle(s) d'eau
  • construit en 2024
  • cuisine séparée (équipée)
  • 1er étage
  • 1 ascenseur
  • terrasse

Composition

Composition de ce bien

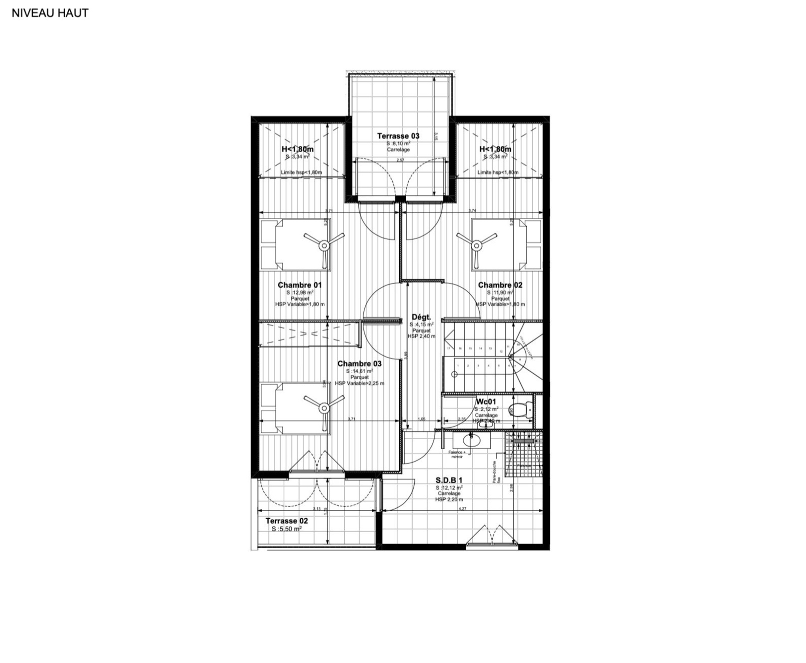
Rez-de-chaussée

  • varangue 19,30 m²
  • wc possibilité de faire une sde 3,90 m²
  • cuisine 10,27 m²
  • séjour 48,81 m²
  • terrasse entrée 10,09 m²

Etage 1

  • salle d?eau 12,12 m²
  • palier 4,15 m²
  • wc 2,12 m²
  • chambre 3 avec terrasse 12,12 m²
  • chambre 2 avec terrasse 11,90 m²
  • chambre 1 avec terrasse 12,98 m²
  • terrasse étage 8,10 m²
  • terrasse étage 5,50 m²

Financier

Informations financières
Prix de vente 560 000 € Les honoraires d'agence seront intégralement à la charge du vendeur

Simulation

Calcul des mensualités
* Champs obligatoires
Lionel LAQUAY Négociateur